Photo : 18 / 383
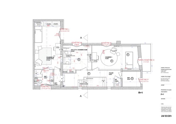
Plan du premier étage : au second niveau, c’est le domaine des enfants qui possèdent chacun une salle de bains personnelle. La chambre de Charlotte de 17,7 m² accompagnée de sa salle de bains de 4,3 m² occupe la partie en L de la maison dont la surface correspond, au niveau inférieur, au salon. L’autre chambre (15,9 m²) et sa salle de bains de 4 m² est séparée de la première par la chambre d’amis et équipée d’un canapé convertible. Elle est aussi utilisée comme salle de TV, bibliothèque et salle de jeux.

Plan du premier étage : au second niveau, c’est le domaine des enfants qui possèdent chacun une salle de bains personnelle. La chambre de Charlotte de 17,7 m² accompagnée de sa salle de bains de 4,3 m² occupe la partie en L de la maison dont la surface correspond, au niveau inférieur, au salon. L’autre chambre (15,9 m²) et sa salle de bains de 4 m² est séparée de la première par la chambre d’amis et équipée d’un canapé convertible. Elle est aussi utilisée comme salle de TV, bibliothèque et salle de jeux.

©Camille Hermand Architectures

Articles utilisant cette photo

  • Une surélévation pour une suite parentale

    Une surélévation pour une suite parentale

    | Reportages | Agnès Zamboni

    La réhabilitation de cette maison familiale a permis d’agrandir l’espace tout en harmonisant l’existant. Au programme, une surélévation en toiture et un bel esprit d’ouverture habilement gérés par l’a