Photo : 292 / 383
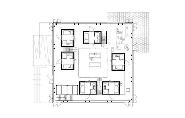
En Allemagne, des étudiants imaginent, pour eux-mêmes, une résidence universitaire à énergie positive: Cubity. Son concept : un aménagement compact de logements individuels, économes en énergie.