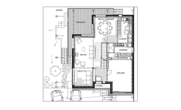
Comprendre les plans d’architectes Afficher toute la galerie photos ◄ préc. | suiv. ► Photo : 205 / 383 Plan du rez-de-chaussée côté rue qui accueille les pièces de vie communes et un atelier de travail pour l’un des propriétaires. ©Mélanie Lallemand Architectures ◄ préc. | suiv. ►
A Sucy-en-Brie, une maison en bois certifiée HQE 14/01/2016 | Maison Basse Consommation | Agnès Zamboni L’architecte Mélanie Lallemand Flucher a conçu cette habitation en bois certifié aux lignes simples où il fait bon vivre et travailler.