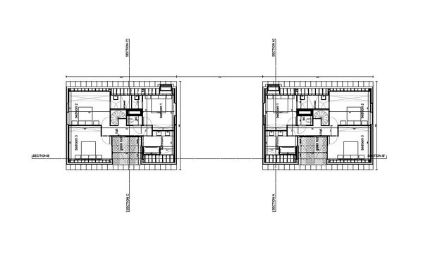
Comprendre les plans d’architectes Afficher toute la galerie photos ◄ préc. | suiv. ► Photo : 173 / 383 Le troisième niveau regroupe les chambres et la salle de bains et complète l’étage inférieur. ©BURO II & ARCHI + I ◄ préc. | suiv. ►
En Belgique, deux logements collectifs au cœur des dunes 03/04/2016 | Ecologie Développement Durable | Agnès Zamboni Situés en Flandre, ces deux bâtiments s’intègrent parfaitement dans le paysage maritime d’une station balnéaire de la côte belge occidentale.