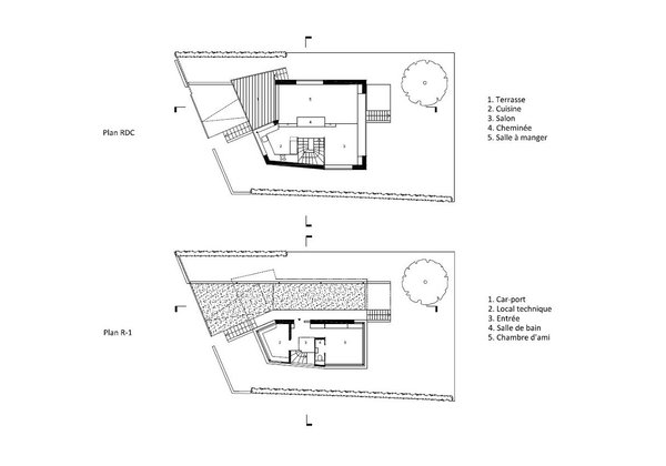
Comprendre les plans d’architectes Afficher toute la galerie photos ◄ préc. | suiv. ► Photo : 99 / 383 Au rez-de-chaussée, la pièce-à-vivre offre un espace convivial et ouvert. Au niveau inférieur, on a aménagé une chambre d’ami avec sa salle de bains. ©Karawitz ◄ préc. | suiv. ►
Maison passive à la géométrie inventive dans les Yvelines 08/07/2017 | Achitecture de demain | Agnès Zamboni Située à Marly-le Roi, cette construction en bois massif accueille des intérieurs en acier et béton brut. Une réalisation de l’agence Karawitz.