Photo : 338 / 383
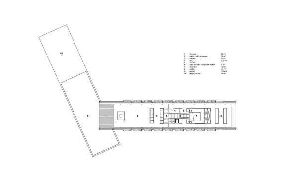
Ce projet de maison en bois sur pilotis, resté à l’état d’étude, devait abriter l’habitation et l’atelier d’un artiste. Un vrai parti-pris d’innovation pour s’intégrer dans le décor naturel et vierge.