Photo : 128 / 383
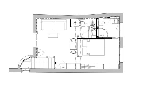
On croit la couleur réservée aux grands espaces. Que nenni ! Elle offre ici toutes ses qualités pour sculpter le volume d’un petit appartement et le transformer en un écrin raffiné.