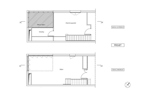
Comprendre les plans d’architectes Afficher toute la galerie photos ◄ préc. | suiv. ► Photo : 49 / 383 Plans projetés des étages 3 et 4 ©Arnaud Lacoste / Lode Architecture ◄ préc. | suiv. ►
Dans un duplex, 14 m² gagnés, sans tout casser 25/08/2018 | Architecture d'intérieur | Agnès Zamboni En réduisant la hauteur d’un duplex, l’architecte Arnaud Lacoste de l’agence Lode Architecture a remplacé un volume inutile par un agrandissement bénéfique pour une chambre.