Photo : 42 / 383
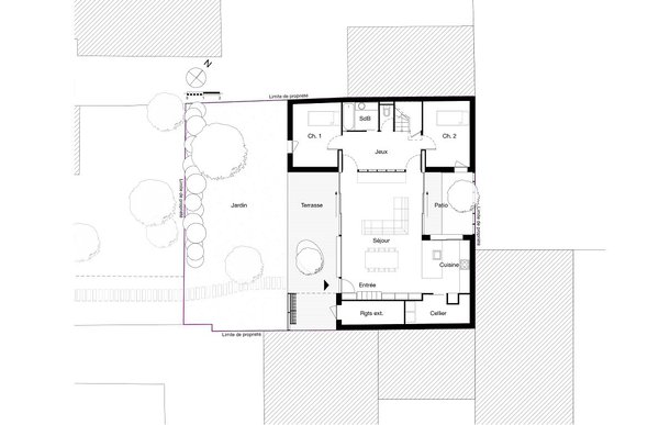
Transformer une contrainte en avantage, c’est le défi de Claire Poulnais de l’agence Tilt Architectes qui a réussi à construire sa maison sur un terrain aux limites séparatives très contraignantes.