Photo : 204 / 383
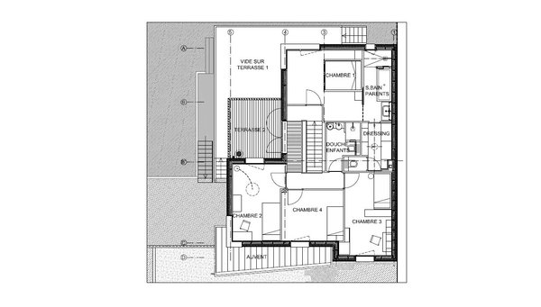
Plan de l'étage et troisième niveau d’habitation qui réunit les chambres parents et enfants, les salles de bains et le dressing. À cet étage, les pièces sont à nouveau agencées autour de l’escalier : d’un côté la suite parentale, de l’autre les trois chambres d’enfant avec leur salle de bains. Les pièces d’eau se superposent dans un bloc central qui simplifie l’organisation des gaines techniques et limite les coûts.

Plan de l'étage et troisième niveau d’habitation qui réunit les chambres parents et enfants, les salles de bains et le dressing. À cet étage, les pièces sont à nouveau agencées autour de l’escalier : d’un côté la suite parentale, de l’autre les trois chambres d’enfant avec leur salle de bains. Les pièces d’eau se superposent dans un bloc central qui simplifie l’organisation des gaines techniques et limite les coûts.

©Mélanie Lallemand Architectures

Articles utilisant cette photo