Le charme de l’ancien revisité
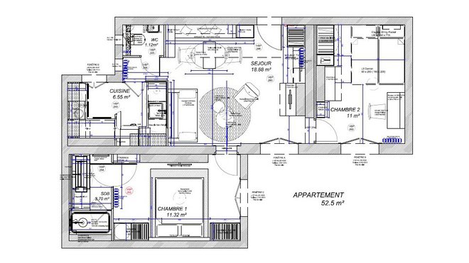
Parquets, moulures, corniches, cheminées, belles hauteurs sous plafond, les caractéristiques du style haussmannien offrent un cachet indéniable à un appartement. Mais aujourd’hui, on le conjugue sur le mode design, avec des créations actuelles, ludiques aux couleurs acidulées. C’est tout l’art de l’architecte Camille Hermand qui sait si bien redonner vie à des espaces classiques parisiens. Tout en gardant le charme traditionnel de l’appartement, elle a réalisé une rénovation est à la fois dynamique et fonctionnelle, avec des accents rétro. Un appartement de 52 m² métamorphosé par un choix de couleurs très subtiles et un mobilier aux lignes contemporaines.

©Jennifer Sath
Une pièce à vivre recomposée
Optimisant l’espace, la pièce à vivre est désormais organisée en trois zones : autour de la table, le salon et la cuisine. La banquette-bibliothèque, conçue sur-mesure par Camille Hermand, autour de la table de repas, crée un coin «cosy» pour déjeuner, lire et recevoir des amis, tout en gagnant de la place. Coté séjour, le canapé gris clair qui s’harmonise avec les couleurs des murs joue les caméléons et se fond dans le décor sans occuper trop d’espace. Dans la cuisine, des verrières séparent la zone de préparation des repas du séjour, optimisant la lumière naturelle et la transparence de l’appartement, aux perspectives valorisées. Pour souligner le coté retro-chic, les sols des espaces séparées par des verrières (cuisine et salles de bains) sont recouverts de carreaux de ciment à motifs géométriques. Au mur, un carrelage métro et dans la cuisine, un réfrigérateur aux formes arrondies façon années 1950, bleu pastel. Tandis que dans le coin repas un papier-peint aux dessins graphiques met un valeur une palette fraîche de bleus clairs et de gris. Et dans chaque pièce, une sélection de luminaires valorise encore l’espace.

©Jennifer Sath
Une intervention qui offre une identité
Côté espace, la distribution de l’appartement n’a pas été transformée. Mais la cuisine et les salles de bain réaménagées derrière leurs verrières façon atelier changent tout et facilitent la circulation de la lumière, tout en offrant leur style industriel à l’espace. Camille Hermand a précisément créé une salle de bains dans la seconde chambre qui n’en possédait pas et rénovée celle qui en avait une, tout en optimisant légèrement l’espace de cette dernière, en supprimant notamment sa cheminée et en accrochant, à sa place, une télévision murale.
Contact : www.camillearchitectures.com

©Jennifer Sath

©Camille Hermand

©Camille Hermand

©Jennifer Sath

©Jennifer Sath

©Jennifer Sath

©Jennifer Sath

©Jennifer Sath

©Jennifer Sath













Ajouter un commentaire