Nouvelle déco pour une nouvelle vie !
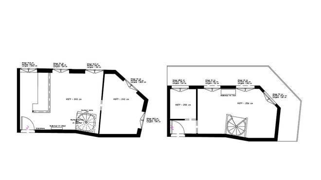
L’appartement vieillot situé dans un immeuble construit à la fin XIXème nécessitait une intervention d’importance pour être modernisé, sécurisé au niveau de son escalier en colimaçon et restructuré avec des espaces différentiés. L’étude a duré 5 mois incluant la demande d’autorisation de la copropriété et les travaux ont nécessité 4 mois. « La propriétaire souhaitait réactualiser la décoration démodée avec des meubles, des matériaux et des aménagements plus tendance et dans l’air du temps. Après 20 ans passés sans rénovation, elle a décidé de fêter sa retraite avec une nouvelle déco ! L’appartement offrait, au second niveau, une terrasse de 1,30 m de large qui a inspiré, en premier lieu, le projet d’inverser les fonctions des principaux espaces. Mais finalement la fonction des pièces existantes n’a pas été modifiée, car il a été jugé préférable de conserver les pièces de jour au niveau où l’espace offrait une plus haute hauteur de plafond », raconte l’architecte Xavier Gainard.

©Pierre-Olivier Signe
Des changements de tous bords
Au premier niveau, un meuble de rangement a permis de structurer l’espace et le salon, tandis que l’escalier et les sols ont été remplacés, la cuisine modernisée. Au second niveau, on a créé une zone de communication entre la chambre et la salle de bains existantes. La salle de bains a été totalement métamorphosée. L’isolation phonique a été améliorée et les 9 fenêtres endommagées ont été remplacées. « Tous les choix proposés ont été validés par la propriétaire qui a suivi mes propositions avec enthousiasme », précise l’architecte d’intérieur Xavier Gainard qui a confié les travaux à l’entreprise Gomat.

©Pierre-Olivier Signe
Une nouvelle cuisine
Derrière sa verrière très actuelle, la cuisine a perdu 60 cm de rangement en partie basse mais bénéficie aujourd’hui de meubles hauts supplémentaires. Et le lave-linge qui encombrait la cuisine a été intégré dans la salle de bains…
Contacts :
Créateurs d’Intérieur : www.createursdinterieurs.com
Xavier Gainard, tél. : 06 64 79 25 97
Mail : xavier.gainard@gmail.com
SARL Gomat :
30, rue de la Gare
94110 Arcueil
Tél. : 08 92 97 64 68

©Pierre-Olivier Signe

©Pierre-Olivier Signe

©Pierre-Olivier Signe

©Pierre-Olivier Signe

©Pierre-Olivier Signe

©Pierre-Olivier Signe

©Pierre-Olivier Signe

©Xavier Gainard

©Xavier Gainard

©Xavier Gainard

©Xavier Gainard

©Xavier Gainard

©Xavier Gainard

©Xavier Gainard

©Xavier Gainard













Ajouter un commentaire