Des circonstances particulières
« Nous avons acquis un premier plateau au 3ème étage d’un immeuble, tout en sachant que le permis de construire stipulait la possibilité d’une surélévation. Nous avons profité ainsi de la hauteur de l’immeuble voisin qui est plus haut d’un étage et demi. Sans cette « dent creuse », nous n’aurions pas pu faire aboutir notre projet », raconte Thomas Vanwindekens qui a d’abord assuré la réfection du premier niveau d’habitation, avant de se lancer dans le projet de l’extension.

©Thomas Vanwindekens pour Spotless
Une nouvelle construction en bois
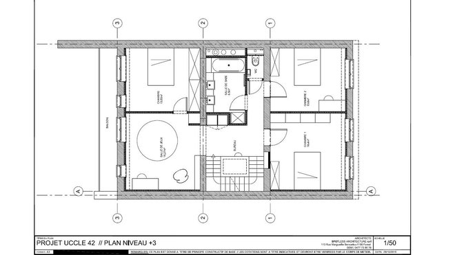
La boîte en bois, qui ne dépasse pas la limite constructive dictée par l’immeuble mitoyen, a été posée début octobre 2014 et le plafond ouvert fin décembre 2014. Pendant ce temps, l’isolation du toit et l’étanchéité ont été parachevées. L’ouverture du plafond a été effectuée au tout dernier moment afin que que toute la famille puisse continuer à habiter au 3ème étage pendant toute la durée du chantier. La nouvelle construction se compose de 3 panneaux de toiture (2 tonnes chacun) et 4 panneaux de façade. Les panneaux de toiture et de façade ont été transportés et mis en place par l’extérieur avec une grue. Le montage a duré 3 jours, sous les intempéries. Et les gravats ont été évacués par la terrasse. La liaison entre les deux plateaux s’effectue par le biais d’un escalier pratiqué dans la trémie de 3 mètres sur 2 mètres et créée au niveau de l’ancien lanterneau.

©Thomas Vanwindekens pour Spotless
Une ambiance scandinave
Mobilier vintage, couleurs claires et pastel, décoration graphique, finition bois visible pour l’intérieur de la nouvelle pièce à vivre, duo de bois et de blanc pour les sols et les murs…on retrouve ici une atmosphère nordique qui accentue la luminosité de l’espace. Et l’espace ouvert offre tout le confort pour les deux enfants encore petits !
Réalisation :
Spotless Architecture
Thomas Vanwindekens
Rue Marguerite Bervoets, 113
1190 Bruxelles
Belgique
Mail : info@spotless.be
www.spotless.be
Tél. : 0032 477 73 80 78

©Thomas Vanwindekens pour Spotless

©Thomas Vanwindekens pour Spotless

©Thomas Vanwindekens pour Spotless

©Thomas Vanwindekens pour Spotless

©Thomas Vanwindekens pour Spotless

©Thomas Vanwindekens pour Spotless

©Thomas Vanwindekens pour Spotless

©Thomas Vanwindekens pour Spotless

©Thomas Vanwindekens pour Spotless

©Thomas Vanwindekens pour Spotless

©Thomas Vanwindekens pour Spotless

©Thomas Vanwindekens pour Spotless

©Thomas Vanwindekens pour Spotless

©Thomas Vanwindekens pour Spotless

©Thomas Vanwindekens pour Spotless

©Thomas Vanwindekens pour Spotless

©Thomas Vanwindekens pour Spotless

©Thomas Vanwindekens pour Spotless













Ajouter un commentaire