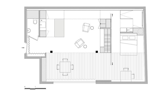
Une centralisation des fonctions
Table rase du passé pour cette réalisation qui donne la parole à l’espace et la lumière naturelle. Le nouveau volume est mis en scène autour d’un bloc central en bois qui délimite les différentes pièces. Il regroupe l’ensemble des rangements de l’appartement et permet également de cloisonner les espaces ouverts grâce un jeu de parois coulissantes. Un store sculptural à lames métalliques est associé à une grande verrière qui éclaire la moitié de la surface. Ce store crée un jeu d’ombre et de lumière qui habille l’espace.

©Luc Boegly
Cinquante nuances de blanc
Le blanc, comme le noir d’ailleurs, n’offre pas une seule couleur, mais une palette de blancs teintés et de blancs aux nuances colorées qui jouent avec la lumière et les autres couleurs. Ici, la tonalité générale est immaculée. Le blanc mat est appliqué de manière absolue : il est support des ombres générées par le store. Le bois du bloc central, les éclats aquatiques apportés par le verre teinté de la douche, le métal du store et le tissu irisé de l’entrée nuancent et réveillent la tonalité d’ensemble.

©Luc Boegly
Côté matières
Un sol en résine blanche ultra mate recouvre un plancher chauffant. Le plafond, découpé de 3 grands décaissés lumineux, est en staff. Les murs et sols de la cuisine et la salle de bains sont nappées de résine acrylique blanche Le bloc central est en placage de bouleau vernis (Marotte). Le grand store est constitué de lames en métal brillant. Des matériaux simples et élégants choisis par Régis Botta qui mettent en valeur l’espace, un vrai luxe aujourd’hui !
Renseignements :
Régis Botta - Architectures
1, rue d’Hauteville
75010 Paris
www.regisbotta.com

©DR

©Luc Boegly

©Luc Boegly

©Luc Boegly









Ajouter un commentaire