Refonte d’un espace
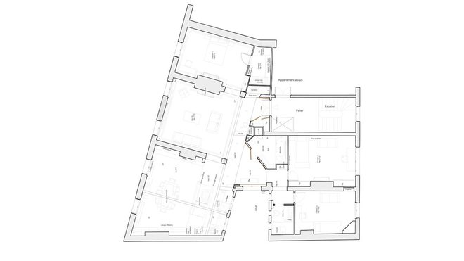
« Cet appartement a été entièrement restructuré, mises à part les deux chambres des adolescents et enfants de cette famille de 4 personnes. L’accent a été mis sur la salle à manger et la cuisine qui ne correspondaient à un mode de vie actuelle. Pour redessiner un espace convivial, un premier couloir qui ne servait à rien a été supprimé et le second a été reculé pour gagner de l’espace et esquisser, au final, une unique pièce de vie. Et l’ancien palier, situé entre les pièces de vie et les chambres des ados, a été mis à profit pour le transformer en salon de musique et accueillir le piano », raconte l’architecte Hortense Reynaud.

©Ppil
Et la lumière fût
La suppression des couloirs a permis de dessiner un espace traversant avec des pièces en enfilade et des fenêtres des deux côtés, côté rue et cour, de façade à façade. Plus rien à voir avec le cloisonnement classique et la mono-orientation d’autrefois. Le piano est inséré dans une grande niche en bois et profite aussi de la lumière diffusée par une fenêtre existante. « Depuis le salon, on découvre toute la diagonale et la perspective avec un agréable sentiment d’amplitude spatiale. Le travail d’un espace en diagonale, distance la plus longue d’un point à un autre, est une solution optimale pour agrandir les volumes après avoir abattu des cloisons », précise l’architecte Hortense Reynaud qui a également tracé des limites plus subtiles pour les différentes pièces avec une implantation stratégique des meubles.

©Ppil
Des aménagements high tech
Outre une cuisine design hyper-formant, on a installé un système domotique et des stores électriques. Le salon intègre un système de Home Movies avec un vidéo projecteur et un écran camouflé dans le plafond pour projeter des films comme dans une salle de cinéma. Des rangements ont été aussi créés comme une penderie dans l’entrée. On a également agrandi le dressing des parents et rajouté un meuble dans la chambre des parents.

©Ppil
Réalisation : Agence Demont Reynaud PPIL
Architecture et Urbanisme
Hortense Reynaud
6, rue du Vieux Versailles
78000 Versailles
Tél. : 01 30 21 12 68 et 06 61 98 99 78
Mail : h.reynaud@ppil.fr et ppil@ppil.fr
www.ppil.fr

©Ppil

©Ppil

©Ppil

©Ppil

©Ppil

©Ppil

©Ppil

©Ppil

©Ppil

©Ppil

©Ppil

©Ppil

©Ppil

©Ppil













Ajouter un commentaire