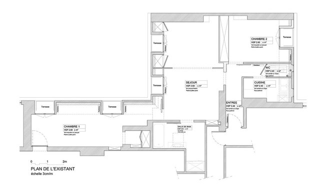
Une ancienne rénovation non aboutie
Cet appartement de 70 m² est situé au dernier étage d’un immeuble hausmannien, dans les volumes d’anciennes chambres de bonnes déjà transformées et réunies en un unique logement. Mais il porte encore les séquelles de ces pieces rapportées : une communication entravée par des espaces inutiles, des chambres trop isolées du séjour et une cuisine sans liaison avec la pièce de vie commune. Quant aux apports de la lumière naturelle, il semble qu’ils n’ont pas été convenablement gérés.

©Stéphane Chalmeau
Un projet reformulé
L’agence H2o architects a propose un projet articulé autour de 3 espaces à vivre connectés et séquencés qui se positionnent en fonction des usages, de la lumière et des multiples vues. Chacun de ces espaces est caractérisé par son orientation solaire, plein est, plein ouest ou plein sud. Chaque enfant dispose d’une chambre indépendante, l’espace à vivre est ouvert à tous et partitionné par des éléments de mobiliers qui reprennent le jeu de pentes des rampants de couverture pour fabriquer un paysage aux multiples « totems ». Ils intègrent les linéaires de bibliothèque et niches de rangement.

©Stéphane Chalmeau
Une signature à l’identité forte
La continuité de l’espace à vivre s’exprime à travers la grande diagonale qui ouvre des perspectives, malgré l’exiguïté des lieux. Deux constantes viennent renforcer la lecture du projet : la couleur blanche sur support bois ou plâtre crée le fond, le bois (chêne) donne à lire la continuité par le sol et par des éléments «totems». Ces rangements ouverts, outre leur aspect pratique et fonctionnel, ponctuent le lieu comme un leitmotiv et rythment l’espace tout en invitant l’occupant à traverser le séjour. Terminée au printemps 2015, cette rénovation qui transforme totalement l’espace a nécessité un budget de 70 000 € TTC.

©Stéphane Chalmeau
Réalisation :
h2o Architectes
Charlotte Hubert, Jean-Jacques Hubert et Antoine Santiard
18, rue du Sentier
75002 Paris
Tél.: 09 64 00 52 81
Mail : contact@h2oarchitectes.com
www.h2oarchitectes.com

©Stéphane Chalmeau

©Stéphane Chalmeau

©Stéphane Chalmeau

©Stéphane Chalmeau










Ajouter un commentaire