Un inconvénient majeur
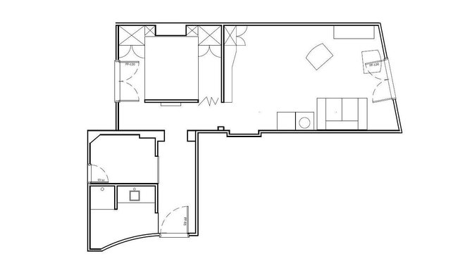
Le propriétaire avait bien compris que la distribution illogique de l’espace et le manque de rangement seraient un frein à la location de ce bien. Il souhaitait aussi que l’architecte Laurent Klein valorise l’espace qui serait loué meublé, avec du mobilier actuel, adapté à l’espace, gain de place et d’esprit jeune : « A la base, composé de 2 pièces principales d’environ 12 m² chacune, avec un long couloir en forme de T de presque 4 mètres, cet appartement s’ouvrait directement sur la chambre, une pièce située en arrière-cour. Et il fallait traverser cette première pièce, pour accéder à la seconde, lumineuse, valorisée par une vue dégagée sur une jolie rue du quartier latin de Paris », explique Laurent Klein.

©DR, Nooor
Une rénovation qui va à l’essentiel
La cuisine n’a pas été transformée, car en excellent état. Le parquet flottant existant n’a pas été changé. La salle de bains entièrement refaite offre un rangement ouvert sous le plan vasque. Pour cacher le lit de la chambre, une cloison, à ses pieds, a été montée. En tête de lit qui prend appui sur la colonne de la cheminée, deux étagères ont été pratiquées de part et d’autre, dans les renfoncements existants. Et de chaque côté de ces rangements, une penderie de 60 cm de profondeur a été aménagée. Bleu ciel dans la chambre, gris bleuté, dans le salon, les murs donnent le ton.

©DR, Nooor
Une bonne adresse déco et pas chère ? Ikea
Fauteuils bas en plastique noir et blanc, tapis chiné gris, canapé convertible, petit buffet, lampes en papier… la plupart des éléments décoratifs et du mobilier a été acheté chez Ikea. « On a essayé de composer une ambiance années 1950 d’aujourd’hui, entre esprit rétro et moderne, pour un jeune couple ». Seuls les rideaux occultants ont été confectionnés sur mesure (modèle Bahia, chez Boussac). Que pensez-vous de cette rénovation partielle qui offre du style, à un lieu sans particularités ?

©DR, Nooor
Réalisation :
Nooor, agence d’architecture intérieure
17, rue Cavallotti,
75018 Paris.
Tél. : 01 42 81 00 72
Mail : contact@nooor.eu
www.nooor.eu

©DR, Nooor

©DR, Nooor

©DR, Nooor

©DR, Nooor
Descriptif technique :
SHON : 30 m²
Année de rénovation : 2012
Durée de l’étude : 1 mois
Durée des travaux : 1 mois et demi
Montant des travaux : 25 000 € HT (achat mobilier, objets décoratifs et rideaux compris), hors honoraires de l’architecte
Dispositif énergétique : convecteurs électriques inchangés
Performances énergétiques : non communiquées










Ajouter un commentaire