De nouveaux volumes
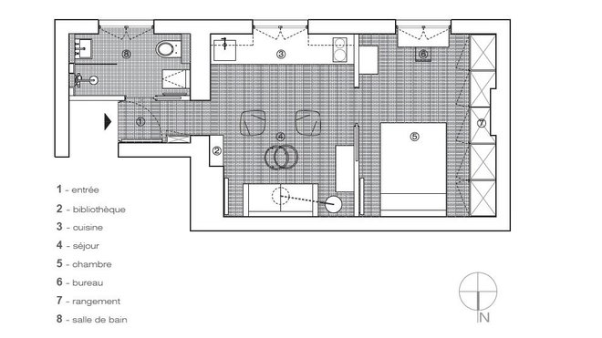
Le projet de l’architecte Olivier Guyot proposait l’aménagement d’un séjour avec cuisine ouverte, d’une chambre et d’une salle bains pour offrir au jeune couple qui désirait l’habiter un volume « ordonné, hiérarchisé et d’une utilisation fonctionnelle ». Pour cela, les surfaces de chaque pièce existante ont été réajustées pour obtenir « un espace jour de 12 m², un espace nuit de 11 m² (9 m² utiles + 6 m3 de rangement), une salle de bains de 3,5 m² et une petite entrée d’1,5 m² », précise Olivier Guyot. Et chaque pièce pouvait bénéficier d’une grande fenêtre orientée plein sud.

©Studio Olivier Guyot architecte
Un nouvel agencement
L’architecte a dessiné un séjour lumineux articulé autour d’une bibliothèque avec le mobilier disposé à proximité de 6 tablettes superposées destinées au rangement des livres. Dans cette pièce, un grand plan de travail fait aussi face à la fenêtre. La cuisine, un espace ouvert sur le séjour, intègre aussi toute la technique et le gros électroménager. Elle été parfaitement aménagée avec de nombreux rangements. Rangements que l’on retrouve aussi dans la chambre…Dans la salle de bains, la surface a été fractionnée en 4 zones : une douche à l’italienne, un espace lavabo, les WC suspendus et le lave-linge. Mais l’ensemble du volume a traité comme un espace à part entière avec une mosaïque identique au sol et sur les murs, et une simple paroi de verre pour cloisonner la douche.

©Studio Olivier Guyot architecte
Un souci d’uniformisation
Trois matériaux ont été seulement utilisés : du chêne clair pour le sol, les plinthes et le plan de travail de la cuisine, une mosaïque en grès cérame pour la salle de bains et du médium laqué blanc pour les rangements qui fusionnent avec les murs comme s’ils avaient toujours été là !

©Studio Olivier Guyot architecte
Contact :
Studio Olivier Guyot architecte
3, Cité Férenbach
75017 Paris
Tél. : 06 70 07 66 53
Mail : studio@studio-olivierguyot.com
www.studio-olivierguyot.com

©Studio Olivier Guyot architecte

©Studio Olivier Guyot architecte

©Studio Olivier Guyot architecte

©Studio Olivier Guyot architecte

©Studio Olivier Guyot architecte

©Studio Olivier Guyot architecte

©Studio Olivier Guyot architecte

©Studio Olivier Guyot architecte

©Studio Olivier Guyot architecte













Ajouter un commentaire