Une restructuration globale
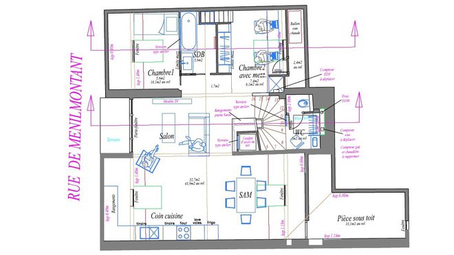
« Les deux appartements disposaient de vraies fenêtres et d’une terrasse avec vue sur l’église de Ménilmontant. Un cagibi à mi-étage a pu être racheté et le palier de la cage d’escalier du 4ème étage a été aussi intégré au nouveau volume recomposé à partir de deux appartements », raconte l’architecte d’intérieur Grégory Gauthier, responsable de cette rénovation. La copropriété a accepté le rachat de la cage d’escalier en contrepartie de la création d’un conduit de sécurité d’accès à la toiture : il s’est matérialisé par la construction d’un cube surmonté d’un Velux, avec une échelle, pour permettre aux pompiers d’accéder au toit. Et la porte d’entrée a été également déplacée. Quant à l’espace à réinventer, le concept consistait à dessiner un grand plateau ouvert et créer une pièce à vivre. Pour cela, on est reparti du point zéro, et on a abattu toutes les cloisons existantes.

©Loftsdesign
Un espace modernisé
L’ancien sol en tomettes a été remplacé par un béton de ragréage ciré, réalisé sur une chape allégée avec billes de polystyrène. Ce nouveau sol a permis de gagner 5 cm en hauteur dans la partie salon. Le cagibi a été transformé en entrée avec coin WC intégrant un lave-main et un vestiaire. Et pour optimiser l’espace, de nombreux rangements ont été intégrés.
Le premier étage accueille désormais la pièce principale avec, à droite et à gauche, les deux chambres séparées par une salle de bains. Le bureau offre un accès à la chambre des parents aménagée sur une mezzanine. Derrière le bureau cloisonné, on a caché le ballon d’eau chaude. Tandis que le dressing avec portes miroir sépare la salle de bains du même bureau.

©Loftsdesign
La couleur en touches
Pour structurer le grand plateau de 44 m² au sol, un mur vert de style flamand habille le mur pour mettre en valeur un portrait ancien, et un panneau revêtu de noir pour dessiner le coin bureau ouvert sur la grande pièce à vivre. Quant aux meubles, ils font office de séparation de pièces et leur orientation dessine leur fonction, coin cuisine, repas ou détente, tout simplement.
Réalisation :
Grégory Gauthier, design d’espace et architecture d’intérieur
Tél. : 02 18 10 49 16 et 06 23 24 59 28
Mail : loftsdesign@gmail.com
www.loftsdesign.ultra-book.com

©Loftsdesign

©Loftsdesign

©Loftsdesign

©Loftsdesign

©Loftsdesign

©Loftsdesign













Ajouter un commentaire