Quel était l’état de l’appartement avant les travaux?
La propriétaire y habitait déjà. Avec une implantation tout en longueur, il était composé, comme beaucoup d’appartements parisiens de cette époque, de petites pièces assez étroites et fermées par de multiples portes. Avec des fenêtres orientées au nord et une attribution identique, il fallait donner plus d’espace et de perspective à l’ensemble. Des travaux de fonds ont été nécessaires pour la restructuration complète de cet appartement en espace de vie plus ouvert.

©Philippe Harden
Quels ont été les changements principaux ?
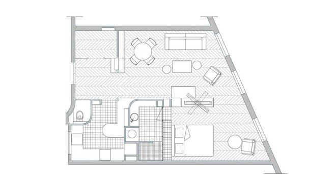
Deux cloisons ont été abattues, entre la salle bains et la chambre, puis une seconde entre la chambre et le salon, pour créer plus de fluidité et laisser place à une nouvelle salle de bains. Le mur de séparation, peint en bleu, est devenu un élément central. Il sépare sans cloisonner, incluant différentes fonctions, comme les rangements double face, le dressing ou les bibliothèques, le bureau et la télévision orientable. L’angle est arrondi pour mieux s’intégrer. Les lieux de vie se découvrent discrètement et sont plus faciles à vivre, contrairement au loft ou tout est à vue.

©Philippe Harden
La chambre et la salle de bains sont conçues aussi comme de vraies pièces à vivre ?
Oui, la salle de bains a été agrandie avec cette baie vitrée en acier qui a été créée. Elle laisse entrer la lumière en second jour et sépare la salle de bains de l’espace nuit avec un double rideau occultant pour plus d’intimité.

©Philippe Harden
Le mobilier design et les couleurs font-ils aussi partie du projet initial ?
En effet, nous avons fait les choix ensemble, avec la propriétaire. Tout d’abord, nous avons opté pour ce bleu, une couleur forte qui marque l’appartement et le structure. Autour les coloris pastel sont un contrepoint qui apaise cette tonalité. Pour le mobilier, nous avons choisi les lignes rondes, les matières douces et confortables parmi les marques qui font l’actualité du design. Ces éléments contribuent à la fonctionnalité et la modernité de l’appartement.

©DR
Maîtrise d’ouvrage : privée
Maîtrise d’œuvre Olivier Chabaud Architecte www.olivierchabaud.com
Surface : 65 m²
Budget : non-communiqué
Livraison décembre 2013

©Philippe Harden

©Philippe Harden









Ajouter un commentaire