Des architectes impliqués
Ce projet de cabane habitable a été réalisé par l’architecte DPLG Jean-Baptiste Barache et l’architecte DESA Sihem Lamine de l’agence arba-, créée en 2007. Comme toutes leurs réalisations conçues avec une approche environnementale, ils visent à construire un habitat durable et abordable. Selon leurs principes, la maison tend à « servir d’abri » et offre une fonctionnalité essentielle et optimale. L’habitat est en interaction avec le site, le paysage. Et le choix des matériaux en découle naturellement.

©Arba
Un habitat rationnalisé
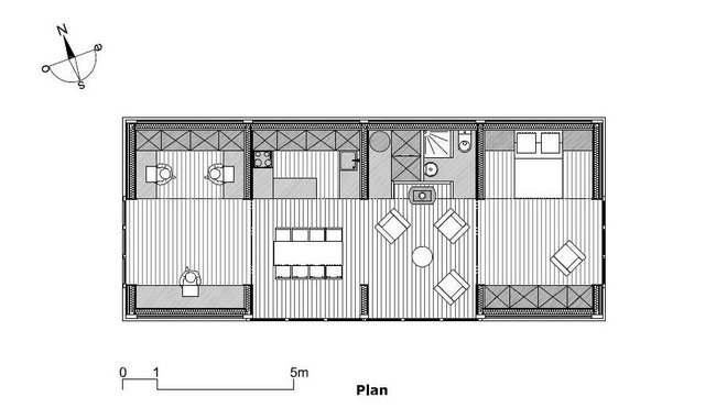
Située près de Lisieux, en Basse-Normandie, la maison offre une surface de 78 m², idéale pour deux personnes. Son budget n’a pas dépassé 136 000 €.
« Cette maison n'est pas un prototype, mais bien l'habitation principale de deux jeunes filles venues de Paris pour s'installer dans le Calvados », raconte Jean-Baptiste Barache. « Il s'agissait de construire un espace de vie et de travail pour deux personnes, et donner l'impression de vivre sur la prairie plutôt que dans une petite maison. Une longue réflexion a été menée pour utiliser l'énergie et le budget avec justesse, dans un processus d'optimisation intense. Le résultat est une maison-outil qui exprime jusque dans sa forme son rapport à l'environnement. Sa générosité se trouve d'une part dans sa toiture pensée pour récupérer les eaux de pluie, d'autre part dans la manière de s'ouvrir et de regarder la prairie : des châssis en mélèze composés d'un carré de verre clair encadré de verre sablé formant des baies vitrées coulissent le long des murs. Fermées, elles dessinent des cadrages soignés sur le paysage; ouvertes, les baies vitrées disparaissent complètement en dénudant la moitié des façades. La maison devient alors béante et la prairie aspirée à l'intérieur ».

©Arba
Le choix du bois
Construite sur des plots en béton avec une ossature en sapin du nord, sa toiture est composée de bacs acier. Son bardage et ses menuiseries sont en mélèze de Russie, une essence de bois qui ne nécessite pas de traitement particulier et qui offrira, au fil du temps, une jolie patine grisée. A l’intérieur, la maison a été isolée avec 40 mm de laine de bois (souple) et entre les montants avec 145 mm de laine de bois (souple).
Le 1er juin 2015, cette cabane chic a reçu le Prix Régional de la Construction Bois Basse-Normandie. Elle est désormais en lice pour le Prix National. Voteriez-vous pour elle ?

©Arba
Renseignements :
Agence arba-
7, rue Burnouf
75019 Paris
Tél. : 06 12 26 00 56
Mail : barache.lamine@gmail.com
www.arba.pro
Bon plan : cette maison est visitable sur RDV durant les journées Architecture à Vivre : www.journeesavivre.fr

©Arba

©Arba

©Arba

©Arba

©Arba

©Arba

©Arba

©Arba

©Arba

©Arba

©Arba













Ajouter un commentaire