C’est la dernière étape avant l’ascension du Mont Blanc, que les alpinistes, toujours plus nombreux, gravitent pendant une saison très courte (trois mois seulement !). Afin de les accueillir au mieux et en toute sécurité, l’ancien refuge a été détruit en 2013, parce que trop vétuste. Le nouvel emplacement choisi par la FFCAM (Club Alpin Français) se situe en amont de l’ancien sur une zone plane, plus abritée pour éviter l’enneigement. Le fabuleux chantier de montagne du refuge du Goûter, à près de 4000 mètres d’altitude, a débuté en 2010 avec le terrassement, la plate-forme ancrée dans la roche pour être mis en service en 2012.

©DR
Une volumétrie inspirée de l’œuf
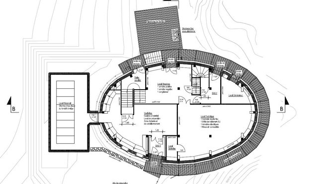
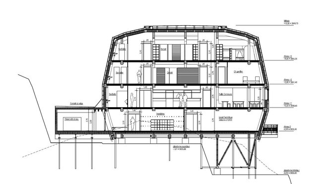
Après l’étude du site, de la roche, l’orientation donnée est perpendiculaire à l’arête. La forme, inspirée de l’œuf, est définie pour donner au bâtiment plus de résistance à l’air, une forme aérodynamique. Le mode constructif du refuge du Goûter est basé sur des modules préfabriqués, calibrés pour le transport et afin de faciliter le montage. La structure de base repose une charpente en sapin ou épicéa massif (label PEFC). « Notre souci constant était les intempéries et le poids des matériaux. Mais à cette altitude, tout est hors norme et l’architecture est rude et spécifique. La recherche de fluidité sur les façades est l'une des données primordiales dans le projet. Ce lieu qui n’est pas contemplatif, comme un classique refuge ; il est une étape, une gare en quelque sorte », explique Christophe de Laage, architecte, l’un des concepteurs du projet. La coque en bois à forte isolation enveloppe le bâtiment, avec plusieurs membranes. La vêture (système d’isolation par l’extérieur) en inox brossé et les menuiseries extérieures bois-métal à triple vitrage avec lames d’argon assurent la protection du bâtiment contre les intempéries. Le refuge du Goûter peut accueillir 120 alpinistes, avec au programme, 6 m² par personne et quatre niveaux : deux niveaux supérieurs pour les dortoirs, le niveau 1 pour les pièces communes, le rez-de-chaussée pour l’accès et les locaux techniques.

©DR
Une architecture durable en altitude
Le refuge du Goûter répond au label HQE (Haute Qualité Environnementale). La gestion des ressources et de l’énergie est conçue pour une autonomie optimale. Il s’agit d’un projet pilote par la multiplicité des énergies utilisées, pour un impact minimum. Les énergies sont renouvelables : panneaux photovoltaïques (pour la production d’électricité), solaire, éolien, biomasse (pour le groupe de cogénération en appoint des photovoltaïques). L’adaptation est automatique aux variations d’occupation; la gestion des rejets des eaux usées est maîtrisée, la chaleur dégagée est récupérée par une centrale double flux, le recyclage de l’eau des wc est traité, et un fondoir à neige est installé pour stocker l’eau froide.

©DR
Une agence spécialisée dans l’architecture d’altitude
Passionnés de montagne, Christophe de Laage et Emmanuelle Guérard ont fondé en 2007 à Chamonix, l’agence Decalaage, spécialisée dans les architectures de montagne ; logements, refuges, restaurants d’altitude… Le projet du mythique refuge du Goûter est la consécration de leur travail.
Decalaage, www.decalaage.com/contact/
Maître d’ouvrage :
FFCAM (Fédération Française des Clubs Alpins et de Montagne) www.ffcam.fr
Maîtrise d’œuvre :
Coordination : Thomas Büchi et Bernard Benoît, CHARPENTE CONCEPT, Hervé Dessimoz, GROUPE H.
Architectes : Société d’Architecture GROUPE H, www.groupe-h.com
Decalaage Architecture, www.decalaage.com
Ingénieur bois : CHARPENTE CONCEPT, www.charpente-concept.com
Ingénieur fluides : CABINET STREM, www.strem.fr
Ingénieur structure fondations : BETECH SA, www.betechsarl.com
Simulations thermiques : ALBEDO ENERGIE.
Economiste : Cabinet DENIZOU

©DR

©DR

©DR

©DR

©DR

©DR

©DR

©DR

©DR

©DR

©DR

©DR

©DR













Ajouter un commentaire