1 + 1 = 2
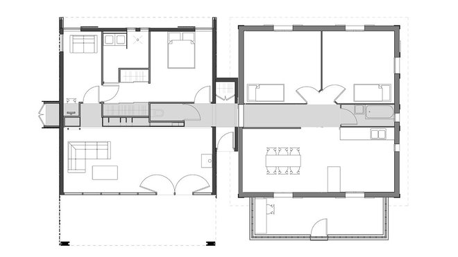
« La famille était à l’étroit. Nous avons réservé la maison existante aux enfants et avons créé une maison jumelle pour les parents, en suivant les règles de construction déjà présentes : toiture en pente, véranda…», raconte Julien Vincent de l’agence Whyarchitecture. Comme pour chaque projet, ce studio d’architecture avait proposé trois esquisses et implantations très différentes, dont une prolongation de la maison existante sur le jardin, mais c’est la solution de la construction d’une seconde maison de la même taille qui a été choisie. L’extension est composée de façon autonome, comme une maison en mitoyenneté, et adopte la forme de la première construction, actualisée par l’utilisation de matériaux contemporains. Le toit et les murs extérieurs ont été réalisés en panneaux composites. Trait d’union des deux constructions, la bibliothèque symbolise la passion des habitants pour les livres et la lecture Elle traverse les deux maisons et tente de se prolonger à l’extérieur.

©Whyarchitecture
Un esprit écologique
La nouvelle maison se distingue de la maison ancienne par son mode de construction. Son enveloppe est préfabriquée en ossature bois. La structure est en pin des Landes et le bois, du mélèze, est aussi apparent au niveau du bardage. L’agrandissement est parfaitement intégré dans le paysage. On a travaillé les apports solaires, opté pour une bonne isolation et choisi un chauffage au bois. Et le débord du toit évite la surchauffe l’été.

©Whyarchitecture
Un espace autonome
Avec cette seconde habitation de 76 m², on a quasi doublé la surface de la maison d’origine. Désormais les enfants possèdent leur propre univers, séparé du domaine des parents. La pièce de vie conviviale, aménagée dans la première maison, est aussi un lieu de partage pour toute la famille. Quant aux travaux réalisés en 2010 ont coûté 85 0000 € HT.

©Whyarchitecture
Contact :
Agence Whyarchitecture
18, rue des Bahutiers
33000 Bordeaux
Tél. : 05 40 01 96 23
Mail : contact@whyarchi.com
www.whyarchi.com

©Whyarchitecture

©Whyarchitecture

©Whyarchitecture

©Whyarchitecture

©Whyarchitecture

©Whyarchitecture












Ajouter un commentaire