Concevoir un plan de maison qui tienne compte de votre budget, des contraintes imposées par la mairie, de l’évolution de votre famille nécessite de bien déterminer vos besoins avec l’architecte. Sinon, vous pouvez préférer contacter des constructeurs pour trouver la maison idéale ? Précisez vos choix, priorités et essayez d’imaginer cette création personnalisée qui sera aussi la vôtre, pour dessiner un plan de maison idéal. Circulations, nombre de WC et salles de bains, rangements divers, pièces techniques… réfléchissez à tous les détails de votre futur plan de maison.
Du rêve à la réalité
Première étape de votre plan de maison, il faut déjà définir la surface habitable dont vous avez besoin, le nombre de pièces et leurs fonctions respectives. La maison peut être de plain-pied ou avec étage(s). Avez-vous besoin d’un sous-sol, d’un garage, d’un atelier ou d’une dépendance ? Souhaitez-vous un plan de maison avec des combles éventuellement aménageables ou perdus ? Quel style architectural vous tente ? Quel toit préférez-vous ? A deux ou quatre pentes ? Une toiture terrasse ? Attention, le PLU (Plan Local d’Urbanisation) du terrain choisi définit souvent des caractéristiques esthétiques extérieures, dont il faut tenir compte dans la conception de votre futur plan de maison. Pour définir le style de votre future maison, vous pouvez regarder dans la presse spécialisée et sélectionner des maisons qui vous ressemblent. Une image parle mieux que des mots. Ensuite, il faudra confronter vos rêves à la réalité financière de votre budget, tout au long du processus de création qui comporte de nombreuses étapes.

©Mickaël Tanguy

©Mickaël Tanguy
Des contraintes évidentes
L’élaboration d’un plan de maison est un mélange de contraintes environnementales, du concept architectural choisi et des besoins de ses occupants. Une maison est donc très différente, au niveau de la conception, si elle est résolument axée sur l’extérieur ou si elle se retourne sur elle-même. Un plan de maison est tout d’abord dessiné par rapport à la configuration du terrain plat ou incliné. Pour schématiser, les maisons en forme de L, T, U ou Y ne sont pas conçues de la même façon. Il faut donc penser à la forme générale que vous souhaitez donner à votre future habitation. Pour un plan de maison en L, le terrain doit offrir une longueur de façade suffisante avec une entrée ou un accès dans le volume. Et les volumes des étages doivent être placés à la fonction des deux ailes. Il faut définir aussi l’orientation la meilleure et la technique de construction (ossature bois, métallique, brique, béton…). Et si vous souhaitez-vous participer à la construction, réfléchissez à quelle étape votre collaboration peut-elle intervenir.

©Fotostudio

©Fotostudio
Quelques règles de base
Le plan d’une maison est divisé en 3 zones, une partie publique et extérieure avec la cour, le jardin, les emplacements de parking, portail et clôture… , une partie privée qui comporte les pièces de nuit, chambres et les salles de bains et une partie semi-privée de vie commune qui correspond au séjour et à la cuisine. Elles peuvent être totalement séparées ou se superposées en fonction de votre mode de vie. Pour une maison de plain-pied, qui réclame plus de surfaces de terrassements et de fondations, il faut vérifier d’abord que le coefficient d’emprise au sol (CES) est suffisant pour la construire. Un terrain à pente trop forte ou offrant une déclivité ne peut supporter une maison de plain-pied qui demande aussi une surface de toiture et des zones de circulation plus importantes pour desservir tous les espaces. Un plan de maison avec étages qui s’adapte aux terrains inclinés et qui peut exploiter un dénivelé ou une vue particulière demande plus de réflexion, car la maison doit être conçue en 3 D et non sur un seul plan. Ses ouvertures seront moins grandes, de format standard et plus nombreuses que celles pratiquées sur une maison de plain-pied, qui est un véritable appel aux baies vitrées.
Pensez-vous être prêt pour commencer à imaginer le plan de votre future maison ?
www.b2ai.com
www.tanguy-architecte.com
www.maisons-durables.com

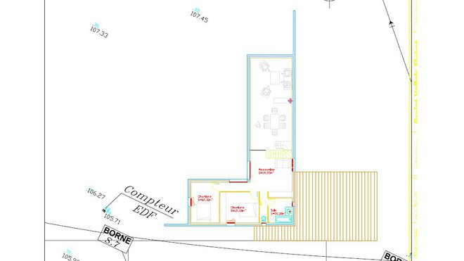
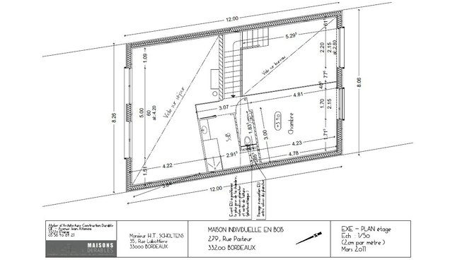
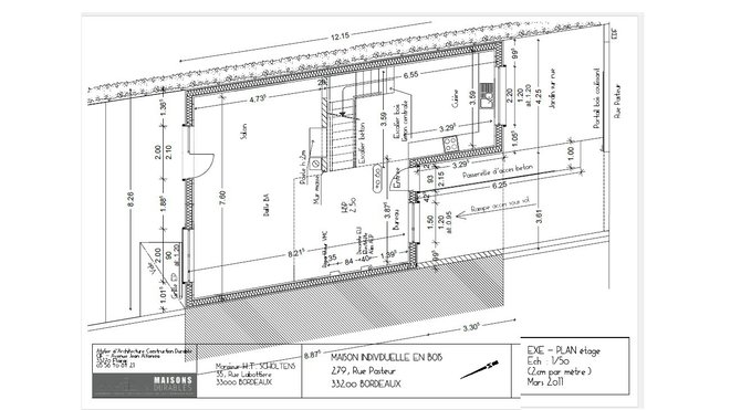
©Maisons Durables

©Maisons Durables









Ajouter un commentaire