Une nouvelle donne
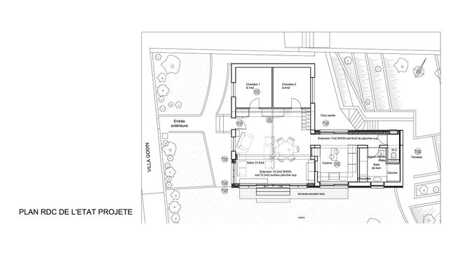
Cette maison des années 1930 occupe un terrain particulier et escarpé classé aux Bâtiments de France. La mission de l’architecte Mélanie Lallemand Flucher était de rééquilibrer cette coquette petite bâtisse abîmée par une première extension massive et inconfortable, réalisée dans les années 1950. Le projet a pour but d’agrandir et de valoriser l’habitation originale, de diminuer l’impact visuel de l’appendice maçonné, tout en optimisant la surface intérieure. Mélanie Lallemand Flucher a stratégiquement placé deux extensions à ossature bois, respectivement aux angles sud et nord. Elles relient désormais les volumes entre eux et homogénéisent le plan des deux constructions existantes.

©Hélène Hilaire
Une valorisation de la lumière naturelle
Largement ouvert sur le jardin, ce projet d’agrandissement de maison grâce une double extension favorise la circulation de la lumière. Côté, dispositif énergétique, on a travaillé une enveloppe performante sur le plan de l’isolation et de l’étanchéité à l’air, avec un traitement particulier des ponts thermiques, notamment dans la partie existante. Un système de récupération des eaux de pluie a été installé. Au sud, les baies vitrées profitent des ombragées de l’été et captent le soleil en hiver. Au nord, on a limité les ouvertures sur la façade. Dans toutes les pièces, y compris les sanitaires, un éclairage naturel limite l’usage de l’éclairage électrique et favorise le bien être.

©Hélène Hilaire
Une enveloppe thermique performante
La structure d’origine était composée d’une ossature bois et de maçonnerie. La structure et la charpente des extensions ont été réalisées en ossature bois (sapin du Jura traité par trempage) sur dalle en maçonnerie, avec prolongement du vide sanitaire de l’existant. Les murs extérieurs (épaisseur 325 mm) sont en bois massif lamellé collé (épaisseur 150 mm + contrecollage). L’isolation a été intégrée dans l’épaisseur des murs extérieurs (Isoconfort d’Isover, épaisseur 140 mm) avec un frein vapeur et un pare-pluie. Une isolation thermique renforcée extérieure en laine de bois a été rajoutée. Le bardage en Mélèze naturel a été traité anti-UV. Une couverture en zinc s’ajoute aux tuiles existantes. Enfin, les menuiseries extérieures des extensions sont composées de coulissants, ouvrants cachés et fixes en aluminium laqué à rupture de pont thermique avec double vitrage et gaz argon pour une isolation thermique renforcée. De quoi réaliser désormais de substantielles économies d’énergie…

©Hélène Hilaire
Renseignements :
Mélanie Lallemand Architectures
34, rue de l’Hermet
93400 Saint-Ouen
Tél. : 01 40 12 88 39
Mail : agence@melanielallemandarchitectures.com
www.melanielallemandarchitectures.com

©Mélanie Lallemand Flucher

©Mélanie Lallemand Flucher

©Hélène Hilaire

©Hélène Hilaire

©Hélène Hilaire

©Hélène Hilaire

©Hélène Hilaire

©Hélène Hilaire

©Hélène Hilaire

©Hélène Hilaire

©Hélène Hilaire

©Hélène Hilaire

©Hélène Hilaire













Ajouter un commentaire