Une problématique actuelle
« Les propriétaires de cet appartement de 84 m² avaient d’abord tenté de le vendre et d’acheter une surface plus grande. Mais avec la pression immobilière parisienne, ils se sont rendus compte que l’opération ne rentrait pas dans leur budget. Il fallait un million d’euros pour acheter un appartement avec une chambre en plus. Leur bien actuel pouvait être revendu entre 8 000 € et 9 000 le m². Ils ont donc choisi la voie de la restructuration de l’espace qui n’a coûté que 100 000 € », explique Jean-Thomas Finateu qui a pris conscience d’un réel besoin des couples qui doivent agrandir leur lieu de vie avec l’arrivée d’un nouvel enfant. « Avant, on déménageait pour plus grand, aujourd’hui on restructure et on valorise son patrimoine existant. Ainsi retravaillé, le nouvel espace bénéficiera d’une réelle plus-value à la revente qui absorbera le prix des travaux », précise Jean-Thomas Finateu qui réalise aussi des travaux d’adaptation dans le résidentiel neuf, une nouvelle tendance due à la crise. En effet, les familles sont souvent obligées de revoir à la baisse la surface désirée, puis font appel à un architecte pour trouver des solutions pour optimiser l’espace.

©Jean-Thomas Finateu pour Chambre en +
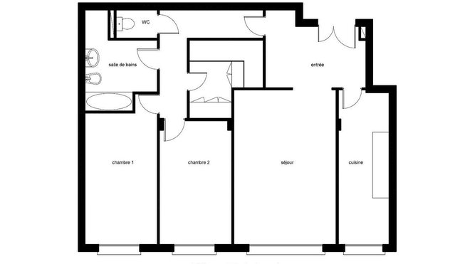
Le plan de l’appartement à revoir
Il a fallu abattre toutes les cloisons. Les travaux qui ont duré deux mois ont été réalisés pendant les mois d’été et les vacances pour perturber le moins possible les occupants. Ils ont pu aussi se loger temporairement chez leurs parents. En déplaçant la cuisine dans le couloir et en jouant sur les espaces de circulation, l’architecte a réussi à dessiner 2 chambres de 9 m² pour les enfants et une chambre de 9,4 m² pour les parents. On a aussi créé une salle d’eau supplémentaire pour eux. Des pans de murs arrondis, animés d’une peinture colorée (rouge, parme, bleu ciel) rythment l’espace. La pièce à vivre, qui a pris la forme d’un L, offre un coin repas séparé du salon. Et la cuisine équipée d’une verrière d’atelier, avec double circulation, profite de la lumière de la pièce principale.

©Jean-Thomas Finateu pour Chambre en +
Une transformation rentabilisée
Les propriétaires peuvent espérer revendre leur bien à 10 000 € le m². Ils ont économisé un coûteux déménagement et évité un déplacement en banlieue, non souhaité. Ils ont conservé leur quartier et leurs habitudes. Et ils ont vraiment l’impression de vivre dans un lieu différent.
Que pensez-vous de cette solution pour agrandir l’espace sans changer d’adresse ?

©Jean-Thomas Finateu pour Chambre en +
Renseignements :
Jean-Thomas Finateu
7, rue Hainaut, 75019 Paris
Tél. : 01 53 11 06 86 et 06 60 42 88 00
Mail : contact@finateu-architecte.fr et contact@chambresenplus.fr
www.finateu-architecte.fr
www.chambresenplus.fr

©Jean-Thomas Finateu pour Chambre en +

©Jean-Thomas Finateu pour Chambre en +

©Jean-Thomas Finateu pour Chambre en +

©Jean-Thomas Finateu pour Chambre en +

©Jean-Thomas Finateu pour Chambre en +

©Jean-Thomas Finateu pour Chambre en +

©Jean-Thomas Finateu pour Chambre en +

©Jean-Thomas Finateu pour Chambre en +

©Jean-Thomas Finateu pour Chambre en +













Ajouter un commentaire