Un parti-pris architectural
Cet immeuble en bois, imaginé pour le site de la rue Piat, à Belleville, en habitat participatif a été conçu par l’agence d’architecture arba (Jean-Baptiste Barache & Sihem Lamine) associé l’architecte à Jean-Loup Baldacci : « C'est un immeuble en KLH ® * sur R+7, légèrement galbé, enveloppé de tasseaux de mélèze avec, comme il se doit, des logements sociaux, des mixages intergénérationnels, des potagers à tous les étages, un poulailler, des ruches , une auto-construction partielle... », raconte l’architecte Jean-Baptiste Barache. Son ossature bois (CLT **ou KLH®**) pour les étages s’associe à une structure béton pour le sous-sol et le rez-de-chaussée. Le bois est à la fois matériau structurel (qui permet de travailler en préfabrication, et de réduire le temps de chantier) et matériau de finition car les panneaux de CLT ** sont toujours visibles à l'intérieur. La structure de l'immeuble se fait ainsi partout sentir, et l'habitant se promène dans une charpente plus que dans un appartement.

©arba (JB.Barache&S.Lamine) + JL.Baldacci
Une nouvelle façon d’habiter
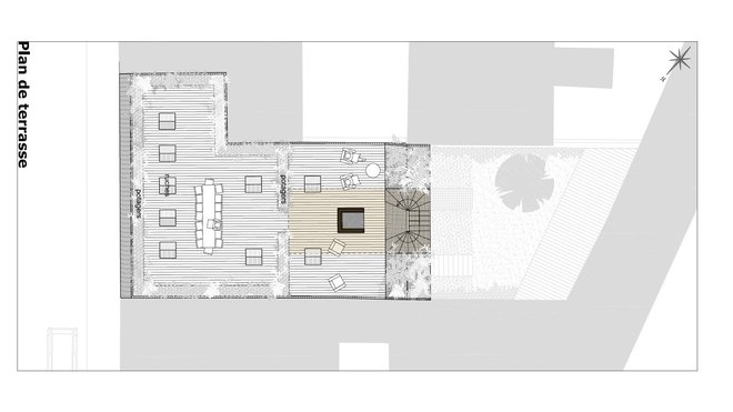
Un dénivelé traité en talus accompagne le jardin, commun à tous les habitants, jusqu'au sous-sol et lui offre une vraie façade lumineuse. Un traitement précis et soigné du filtre sur rue (claustra bois...), sans le dévoiler totalement en toute sécurité rend le jardin entièrement visible. Une passerelle permet de relier, au-dessus du vallon, la dalle du rez-de-chaussée au fond du jardin. Le toit de l’immeuble, autre lieu d'échange et de rencontre, est aussi commun et occasionnellement ouvert aux riverains. Il permet d'installer la plus grande partie gérées par une association spécialisée. Les habitants sont invités à prendre possession des lieux sans qu'il n'y ait aucun cloisonnement (autre que les refends structurels), puis à régler définitivement l’agencement des espaces après un temps d'usage. Ainsi les lots techniques sont traités indépendamment du second œuvre pour des projets de finition en auto-construction.

©arba (JB.Barache&S.Lamine) + JL.Baldacci
Du côté de l’énergie
Le projet est basé sur les principes de l'architecture bioclimatique. Il a été conçu avec l'appui d'Effilios, un bureau d'étude thermique qui propose un immeuble agréable et confortable, sans chauffage, sans ventilation mécanique, et sans climatisation, prolongeant ainsi l'initiative des architectes autrichiens BE-Baumschlager Eberle avec leur bâtiment manifeste 2226. Ici, l’économie d’énergie va de paire avec une sobriété technologique, et par là même, avec une sobriété économique. « Nous avons tous l'expérience de la douce chaleur du soleil d'hiver à travers une paroi vitrée, du courant d'air dans un logement ayant deux façades opposées....et nous souhaitons placer ces sensations à la base du dispositif énergétique, sans transiter par des technologies complexes. L'effet de serre est ainsi optimisé et maîtrisé, et tous les logements sont traversants pour permettre la ventilation naturelle », raconte Jean-Baptiste Barache. Tandis que la chaleur résiduelle des appareils électriques, le rayonnement solaire naturelle et la mise en place d’un système de phasage dans le temps permet aussi de réduire les besoins les besoins en chauffage.
Et vous que pensez-vous de ce type d’habitat groupé et partagé ?
*panneau contrecollé constitué de planches d'épicéa empilées en couches croisées, collées entre elles sous haute compression pour former des éléments en bois massif de grand format.
** cross-laminated-timber, panneau de bois lamellé-collé

©arba (JB.Barache&S.Lamine) + JL.Baldacci
Renseignements :
Arba
7, rue Burnouf
75010 Paris
Tél. : 06 12 26 00 56
Mail : barache.lamine@gmail.com
www.arba.pro

©arba (JB.Barache&S.Lamine) + JL.Baldacci

©arba (JB.Barache&S.Lamine) + JL.Baldacci

©arba (JB.Barache&S.Lamine) + JL.Baldacci

©arba (JB.Barache&S.Lamine) + JL.Baldacci

©arba (JB.Barache&S.Lamine) + JL.Baldacci

©arba (JB.Barache&S.Lamine) + JL.Baldacci

©arba (JB.Barache&S.Lamine) + JL.Baldacci













Ajouter un commentaire